大廈
榮華閣
醫院道18號
西半山
落成年份
1987
呎吋範圍
780-1758平方呎
樓宇規模
77個單位
共2座
類型
高層
Winner Court為1987年落成的成熟住宅大廈,優雅座落香港島東半山寧靜矜貴的醫院道,為這片山巒地段獻上八十年代末經典風韻與便利舒適的山居生活。
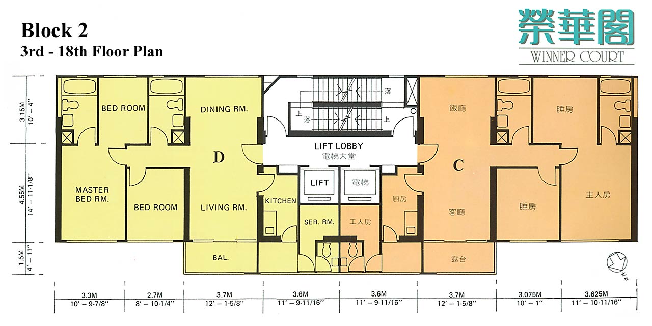
設兩幢20層高優雅大廈,每層標準樓層僅兩伙。A座頂層設兩個複式單位,共38伙;B座頂層則設一個複式單位,總共39個住宅單位。可售面積由780至1,758平方呎不等,提供多樣寬敞間隔選擇,為這成熟半山屋苑帶來靈活生活空間。住戶盡享極致便利,步行即達Soho熱鬧商舖、咖啡廳及餐廳,將寧靜高地生活與香港最活力四射的飲食娛樂區無縫融合。
22.2839891
114.1461545
18
javascript:void(0)
榮華閣
https://jadeland.hk/wp-content/uploads/2026/01/Winner-Court-18-Hospital-Road-Mid-Levels-West-榮華閣-醫院道18號-西半山-Hong-Kong-Renovated-House-For-Rent-For-Sale-Jade-Land-Properties-Hong-Kong-Real-Estate-Agent-香港-靚裝修-出租-出售翡翠島物業-房子-屋子-768x471.jpeg





